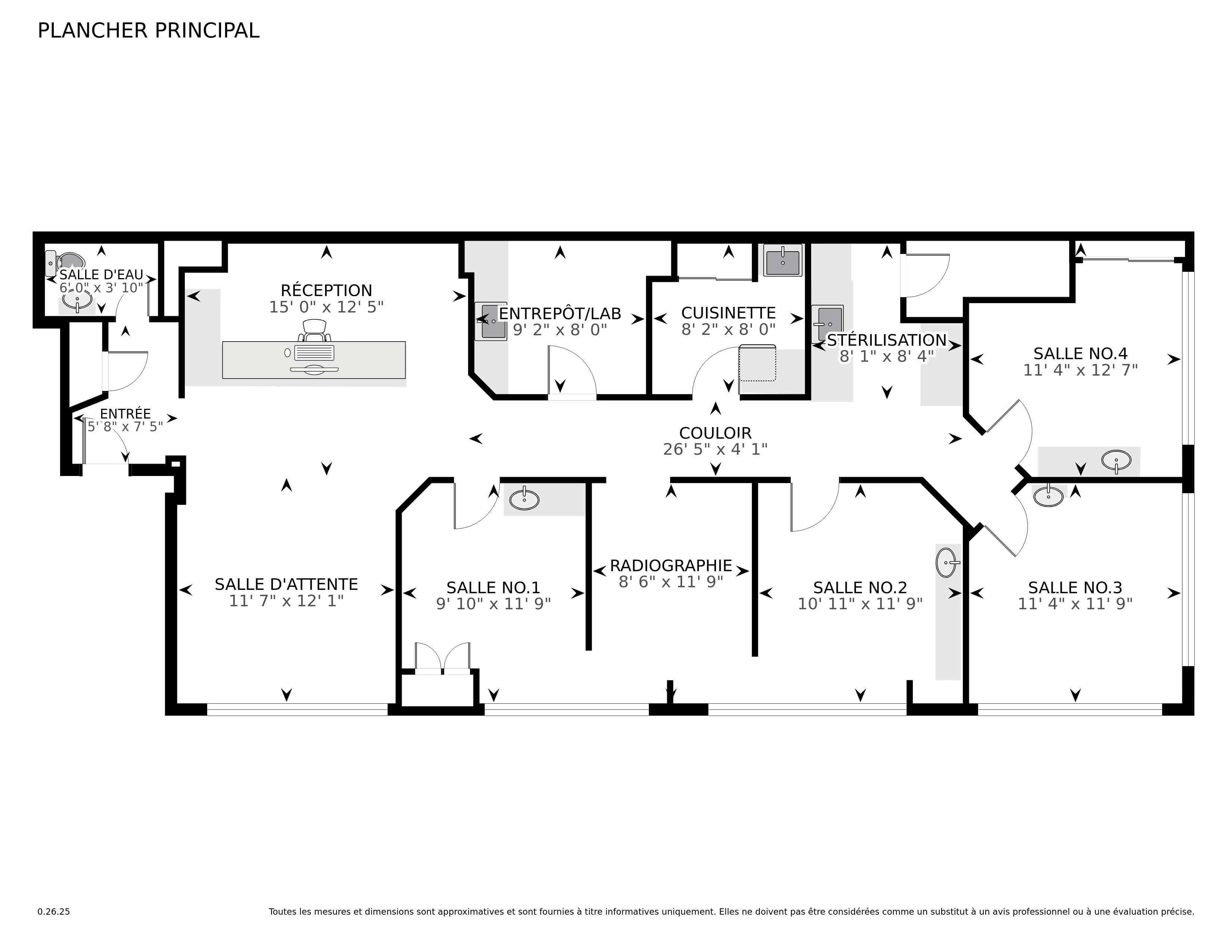
For Rent - Dental Clinic with equipment, 4 dental treatment rooms, 1 X-ray room, 1 sterilization room, 1 lab/storage room, 1 reception area, 1 large waiting room with a view, 1 kitchenette, 1 washroom, and the possibility of a second washroom. Ideally located in Old Saint-Laurent, across from the Collège metro station and Beaudet Park, at the corner of Décarie Boulevard and Collège Street. Large windows throughout: four 10' x 6' windows and two 9' x 6' windows. Triple net lease. See the listing real estate broker for the list of equipment included and information regarding the additional rent. Available immediately.
* This space for rent could be available for professionals
other than dentists.
Usable Square Feet: 1,505 sq ft (The measurement includes
the space occupied up to the exterior wall and 50% of the
walls shared with common areas);
Rentable Square Feet: 1,658 sq ft (The measurement includes
the space occupied up to the exterior wall and 50% of the
walls shared with common areas, and includes common areas
specifically allocated to the rental unit; the measurement
of common areas is based on the same principles.
1. The equipment included in this lease by the TENANT is
provided without legal or contractual warranty, at the
TENANT's own risk, without warranty of operation, quality,
or compliance with all applicable regulations. The TENANT
must acknowledge having been informed of and accept these
terms and must declare that they accept said equipment in
its current condition after having carefully examined it
and verified its operation and compliance. All repairs,
maintenance, and replacements of equipment will be entirely
at the expense of the TENANT. The LANDLORD makes no
representations to the TENANT regarding the operation and
conformity of the equipment included in the lease.
2. The TENANT must declare themselves satisfied with the
methodology used by the LANDLORD to calculate the square
footage of the leased space and common areas.
3. The lease will be drafted by a lawyer or notary
designated by the LANDLORD without exception, at the
TENANT's expense. The TENANT will bear all costs related to
the lease, whether or not the lease is executed.
4. Any promise to lease will be conditional upon the
LANDLORD's complete satisfaction with the lease, at his
sole discretion and without having to justify his reasons,
should the LANDLORD not be satisfied with the lease
agreement between him and the TENANT, the LANDLORD will
render the promise to lease null and void, without any
compensation whatsoever, to the TENANT and/or the real
estate broker representing the TENANT, if applicable.
5. Security Deposit Upon Lease Expiration: The TENANT shall
pay the LANDLORD, upon signing the lease, a sum equal to
three (3) months of the minimum base rent plus any
additional rent.
See the listing real estate broker for the list of
equipment included and information regarding the additional
rent.
This site uses services that uses cookies to deliver better experience and analyze traffic. You can learn more about the services we use at our Privacy Policy.